この建物に1件募集中
部屋を見る ↓
外観タップで拡大
外観タップで拡大
室内タップで拡大
室内タップで拡大
室内タップで拡大
室内タップで拡大
室内タップで拡大
室内タップで拡大
室内タップで拡大
室内タップで拡大
室内タップで拡大
室内タップで拡大
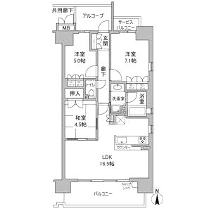
間取りタップで拡大1 / 13
物件情報
物件情報更新:掲載開始:2026年4月19日
コスパスコア
プレミアム寄り
✓㎡単価がエリア平均より安い+30点
—駅徒歩5分以内+20点
✓築10年以内+20点
—敷金なし+15点
—礼金なし+15点
共用設備
オートロックエレベーター宅配ボックス駐車場新耐震基準
/
物件スコア
家賃お得度100点
広さ100点
駅近さ60点
新しさ75点
設備充実度83点
こんな方に向いています
カップル・ファミリー向け忙しい方向け新築・築浅好み向けセキュリティ重視向け安全重視向け上層階希望向け
向かない方
ペットを飼いたい方
この物件の強み・注意点
強み
- オートロック完備で安心のセキュリティ
- 宅配ボックスあり・不在でも荷物受取可
- エリア相場より16%お得なコスパ物件
- 浴室乾燥機付きで雨の日も安心
- 追炊き機能付きバスで快適な入浴
物件PR
多彩な生活スタイルに応える住空間
部屋一覧
1件募集中
室内
室内
室内
室内
室内
室内
室内
室内
室内
室内
207号室2階
3LDK71.17m²南向き
角部屋セパレート浴室乾燥バルコニー
本日新着
19.5万円
敷金 1円
礼金 2円
入居 相談
2.7千円/㎡▼エリア比16%安
室内
室内
室内
室内
室内
室内
室内
室内
室内
室内1/10



