現在満室
空き待ちはLINEで →
外観タップで拡大
外観タップで拡大
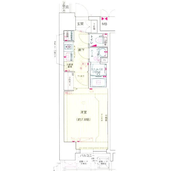
室内タップで拡大
室内タップで拡大1 / 4
物件情報
- 所在地
- 大阪府大阪市福島区吉野2丁目12-17
- 築年月
- 2020年7月築
- 構造・規模
- 鉄筋コンクリート造 地上15階
- 最寄り駅①
- 千日前線 野田阪神駅 徒歩2分
物件情報更新:掲載開始:2026年4月19日
コスパスコア
標準的
—㎡単価がエリア平均より安い+30点
✓駅徒歩5分以内+20点
✓築10年以内+20点
✓敷金なし+15点
✓礼金なし+15点
共用設備
駐車場新耐震基準
/
物件スコア
家賃お得度50点
広さ50点
駅近さ90点
新しさ75点
設備充実度0点
こんな方に向いています
一人暮らし向け駅近派向け新築・築浅好み向け安全重視向け
向かない方
固定費を最小限にしたい方ペットを飼いたい方
この物件の強み・注意点
強み
- 駅徒歩2分の超駅近立地
注意点
- !管理費10,000円/月(総支払額に注意)
部屋一覧
1件現在募集中の部屋はありません



