間取り賃料・費用
7.6万円+管理費 6,000円
- 賃料
- 7.6万円
- 管理費
- 6,000円
- 敷金
- なし
- 礼金
- 1円
- その他費用
- 保険:保険要加入(月額2,490円に含む。(火災保険付き)) カギ交換費用:33,000円(退去時) ※ 特記されているものだけを表示していますので、詳しくはお問い合わせの際にご確認ください。
部屋情報
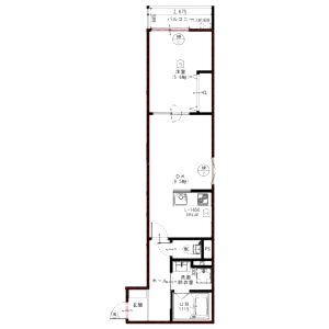
- 間取り
- 1LDK
- 専有面積
- 37.42m²
- 向き
- 北向き
- 階数
- 1階
- 入居可能日
- 2026年6月30日
- ガス
- 都市ガス
設備・条件
費用・条件
敷金なし保証人不要法人可外国人可2人入居可子供可
部屋の特徴
低層階(1〜3F)
キッチン
カウンターキッチン
バス・洗面
バストイレ別浴室乾燥機追い焚きシャワートイレ独立洗面台洗濯機置場
設備
エアコンバルコニーシューズボックス網戸
通信・テレビ
インターネット対応高速インターネット
アクセス・建物情報
- 最寄り駅①
- 京阪電気鉄道京阪線 牧野駅 徒歩3分
- 所在地
- 大阪府枚方市牧野阪1丁目23-3
- 築年月
- 2026年6月築
- 構造・規模
- 木造 地上3階
空室状況・初期費用はLINEで無料相談
この部屋の空室状況や初期費用について、
お気軽にLINEでご相談ください。
仲介手数料無料でご案内します。
お祝い金最大20万円プレゼント中
同じ建物の他の部屋
ウイング牧野駅前の全部屋を見る →